Nel cuore di Viareggio proponiamo in esclusiva congiunta classica casa viareggina con ampia facciata, corte interna e dependance.
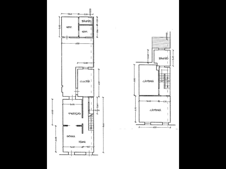
L'immobile si sviluppa su tre livelli:
Piano terra: ingresso, luminoso soggiorno, sala da pranzo e cucina abitabile. Dalla zona giorno si accede a una graziosa corte privata, ottima per momenti di relax all'aperto, dove troviamo una comoda casetta indipendente composta da due vani oltre servizio.
Una bella scala in marmo conduce al primo piano dove troviamo una grande camera matrimoniale con possibilità di realizzare il bagno en suite, una seconda camera matrimoniale e un bagno finestrato con doccia situato al piano ammezzato.
Al piano superiore ampia mansarda con bagno facilmente divisibile in due vani, perfetta come zona ospiti, studio o ulteriori camere.
L'immobile si presenta in ottime condizioni ristrutturato nel 2000 con tetto recentemente rivisto e aria condizionata .
Subito pronto da abitare. Cucina arredata già compresa nel prezzo.
Ottimo rapporto qualità prezzo ideale sia come casa residenziale che casa vacanze investimento.
Non perdere questa buonissima opportunità!!!
Per visite Lara 335 8355049

